Berckheydestraat 14ZW
2021 ES, Haarlem, Nederland
Beschrijving Berckheydestraat 14ZW
ENGLISH BELOW
Klusser gezocht! Maak van deze woning uw eigen meesterwerk
Uniek object bestaande uit een beneden- en bovenwoning, nooit kadastraal gesplitst, dat volledig gemoderniseerd dient te worden en volgens de gemeente beschikt over een solide gemetselde fundering.
Perfect gelegen in het geliefde Frans Halsbuurt
In een rustige straat, midden in de sfeervolle en populaire Frans Halsbuurt, vindt u deze karakteristieke woning. Op slechts een steenworp afstand ligt de levendige Cronjéstraat met diverse speciaalzaken, supermarkten en gezellige horeca. Ook het station, sportvoorzieningen, scholen en het prachtige groen van het Kleverpark zijn binnen handbereik. Fiets in een paar minuten naar het bruisende centrum van Haarlem of rij via de nabijgelegen uitvalswegen zo richting Amsterdam of Bloemendaal aan Zee.
Indeling
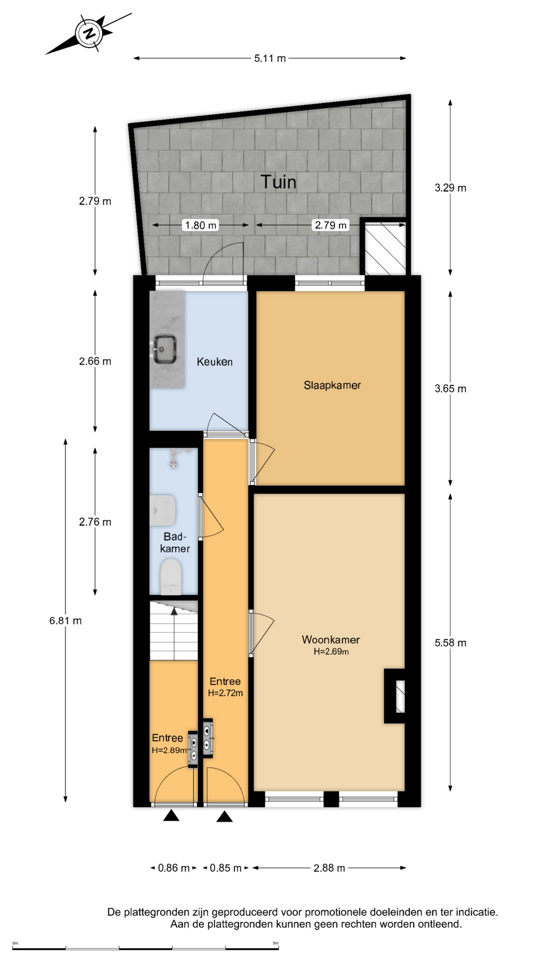
Begane grond: Entree, hal met toegang tot de woonkamer, keuken en badkamer. Vanuit de keuken bereikt u de tuin.
Eerste verdieping: Aparte entree, trapopgang, drie (slaap)kamers, keuken en separate toiletruimte.
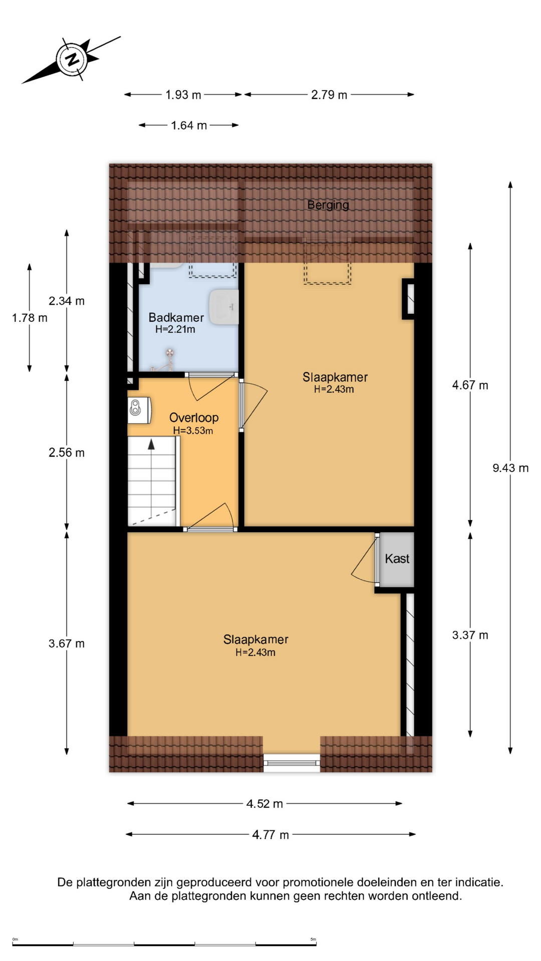
Tweede verdieping: Overloop, twee slaapkamers en een badkamer.
Kenmerken
- Klassiek ZW en RD gebouw
- Momenteel nog niet kadastraal gesplitst
- Dubbele woning met zelfstandige voorzieningen op elke verdieping
- Mogelijkheid tot kadastrale splitsing in 2 woningen (zelf onderzoek vereist)
- Fundering op staal (geen houten palen, volgens opgave gemeente Haarlem)
- Woning dient volledig gerenoveerd te worden
- Beide eigen gas en water aansluiting via Liander
- Toplocatie nabij de Cronjéstraat en station Haarlem
- Binnen enkele minuten fietsen in het centrum
- Niet-zelfbewoningsclausule en ‘as is, where is’-clausule van toepassing
- Snelle oplevering mogelijk, na gereed akte van erfecht
Disclaimer
Hoewel deze advertentie met zorg is samengesteld, kunnen hieraan geen rechten worden ontleend. Informatie en afmetingen kunnen afwijken; kopers wordt aangeraden zelf nader onderzoek te doen. Wij behouden ons het recht voor wijzigingen door te voeren.
_____________________________________________________________________________________
Handy buyers wanted! Transform this property into your dream home
Unique property consisting of a ground floor and upper floor apartment, never divided cadastrally, which needs to be completely modernised and, according to the municipality, has a solid brick foundation.
Perfectly located in the popular Frans Hals neighbourhood
Situated in a quiet street in the charming and highly sought-after Frans Hals neighbourhood, you will find this characteristic property. Just a short walk away is the lively Cronjéstraat, offering a wide variety of specialist shops, supermarkets and cosy cafés and restaurants. The train station, sports facilities, schools and the green surroundings of the Kleverpark are also close by. Within minutes by bike you can reach Haarlem’s vibrant city centre, and by car the nearby main roads provide easy access towards Amsterdam or Bloemendaal aan Zee.
Layout
Ground floor: Entrance hall with access to the living room, kitchen, and bathroom. The kitchen leads to the garden.
First floor: Separate entrance with staircase, three (bed)rooms, kitchen, and separate toilet.
Second floor: Landing, two bedrooms, and a bathroom.
Key Features
- Classic ZW and RD building
- Currently not yet cadastral split
- Double dwelling with independent facilities on each floor
- Possibility of cadastral division into two separate dwellings (own investigation required)
- Foundation on shallow footing (no wooden piles, according to information provided by the Municipality of Haarlem)
- Property requires complete renovation
- Both units have their own gas and water connections via Liander
- Prime location near the Cronjéstraat and Haarlem Central Station
- City centre reachable within minutes by bicycle
- Non-owner-occupancy clause and “as is, where is” clause applicable
- Quick delivery possible, after completion of the deed of inheritance
Disclaimer
Although this advertisement has been compiled with care, no rights can be derived from the information provided. Details and measurements may vary; buyers are advised to carry out their own investigations. We reserve the right to make changes.
Kenmerken Berckheydestraat 14ZW
Overdracht
- Status:Beschikbaar
- Koopprijs:€ 729.000,- k.k.
- Aanvaarding:In overleg
Bouwvorm
- Soort object:Woonhuis
- Soort woning:Eengezinswoning
- Type woning:Tussenwoning
- Bouwjaar:1900
- Bouwvorm:Bestaande bouw
- Liggingen:In woonwijk
Indeling
- Woonoppervlakte:129 m2
- Perceeloppervlakte:66 m2
- Inhoud:486 m3
- Aantal kamers:7
- Aantal slaapkamers:6
Energie
- Energieklasse:D
- Verwarming:CV ketel
- Warmwater:CV ketel
- Combiketel:Ja
- Brandstof:Gas
Buitenruimte
- Tuin:Achtertuin
- Hoofdtuin:Achtertuin
- Oppervlakte:14 m2
- Ligging hoofdtuin:Oost
- Achterom:Nee
- Kwaliteit tuin:Normaal
Parkeergelegenheid
- Parkeer faciliteiten:Betaald parkeren, Parkeervergunningen
- Garage:Geen garage
Dak
- Soort dak:Samengesteld dak
- Materiaal dak:Pannen
Overig
- Permanente bewoning:Ja
- Onderhoud binnen:Slecht
- Onderhoud buiten:Matig
- Huidig gebruik:Woonruimte
- Huidige bestemming:Woonruimte
Ben je geinteresseerd in Berckheydestraat 14ZW, Haarlem? Neem Contact op!

