Leidsevaart 492RD
2014 HR, Haarlem, Nederland
Beschrijving Leidsevaart 492RD
ENGLISH BELOW
Ruim appartement met 4 slaapkamers op de Leidsevaart!
Omgeving:
Centraal gelegen in Haarlem Zuidwest op enkele fietsminuten afstand van Haarlem centrum en op loopafstand van winkels en de Haarlemmerhout. De bossen, de duinen en de stranden van Zandvoort en Bloemendaal zijn met de fiets bereikbaar. Diverse uitvalswegen en het openbaar vervoer naar o.a. Amsterdam, Den Haag en Schiphol zijn gemakkelijk te bereiken.
NS-station Heemstede-Aerdenhout en station Haarlem op 5 minuten fietsafstand.
Indeling:
1e verdieping; hal met toilet, toegang tot de woonkamer met open keuken, aan de voorkant van het appartement is de 1e slaapkamer gelegen met balkon.
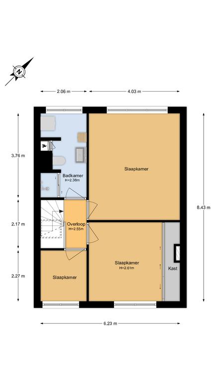
2e verdieping; overloop, 3 slaapkamers en een volledig nieuwe badkamer.
Opleveringsniveau:
Gedeeltelijk gestoffeerd
Minimale voorwaarden:
Inkomen per maand circa: € 7.500,- bruto (gezamenlijk)
Maximaal aantal personen: Zeer geschikt voor een gezin
Huisdieren: In overleg
Roken: Niet toegestaan in de woning
Handig om te weten:
Ingangsdatum huurcontract: Per medio december beschikbaar
Contractduur: Onbepaalde tijd, minimaal 12 maanden
Waarborgsom: 2 maanden huur
Deze informatie is door ons met de nodige zorgvuldigheid samengesteld. Onzerzijds wordt echter geen enkele aansprakelijkheid aanvaard voor enige onvolledigheid, onjuistheid of anderszins, dan wel de gevolgen daarvan. Alle opgegeven maten en oppervlakten zijn indicatief. Koper / huurder heeft zijn eigen onderzoek plicht naar alle zaken die voor hem of haar van belang zijn. Met betrekking tot deze woning is de makelaar adviseur van verkoper.
Wilt u een bezichtiging?
Stuur een e-mail naar info@centraalmakelaardij.nl, en benoem het betreffende adres in het onderwerp. Wij zullen ons best doen alle aanvragen zo snel mogelijk te behandelen.
__________________________________________________________________________________________________________
Spacious apartment with 4 bedrooms on the Leidsevaart!
Surroundings:
Centrally located in Haarlem Southwest, a few minutes by bike from Haarlem city center and within walking distance of shops and the Haarlemmerhout. The forests, dunes and beaches of Zandvoort and Bloemendaal can be reached by bike. Various arterial roads and public transport to Amsterdam, The Hague and Schiphol are easily accessible.
NS station Heemstede-Aerdenhout and station Haarlem are 5 minutes by bike.
Layout:
1st floor; hall with toilet, access to the living room with open kitchen, at the front of the apartment is the 1st bedroom with balcony.
2nd floor; landing, 3 bedrooms and a completely new bathroom.
Level of delivery:
Partly furnished
Minimum requirements:
Income per month approximately: € 7,500 gross (joint)
Maximum number of persons: Very suitable for a family
Pets: In consultation
Smoking: Not allowed in the house
Useful to know:
Start date of rental contract: mid-December
Contract duration: Indefinite period, minimum 12 months
Deposit: 2 months rent
This information has been compiled by us with the necessary care. However, no liability is accepted on our part for any incompleteness, inaccuracy or otherwise, or the consequences thereof. All stated dimensions and surfaces are indicative. Buyer / tenant has his own duty to investigate all matters that are important to him or her. With regard to this property, the broker is the advisor to the seller.
Would you like a viewing?
Send an e-mail to info@centraalmakelaardij.nl, and mention the relevant address in the subject. We will do our best to process all requests as quickly as possible.
Kenmerken Leidsevaart 492RD
Overdracht
- Status:Verhuurd
- Huurprijs:€ 2.495,- p/m
- Aanvaarding:In overleg
Bouwvorm
- Soort object:Appartement
- Soort appartement:Bovenwoning
- Bouwjaar:1923
- Bouwvorm:Bestaande bouw
Indeling
- Woonoppervlakte:107 m2
- Inhoud:360 m3
- Aantal kamers:5
- Aantal slaapkamers:4
- Aantal badkamers:1
- Aantal woonlagen:2
Energie
- Energieklasse:B
- Verwarming:CV ketel
- Warmwater:CV ketel
- Isolatie:Dakisolatie, Muurisolatie, Vloerisolatie, Dubbelglas, Gedeeltelijk dubbelglas, Voorzetramen, Volledig geïsoleerd, Geen spouw, Eco bouw, Geen isolatie, Grotendeels dubbelglas, Driedubbel glas, Hierdichting, HR glas
- Combiketel:Nee
Buitenruimte
- Tuin:Geen tuin
- Achterom:Nee
Parkeergelegenheid
- Garage:Geen garage
Overig
- Permanente bewoning:Ja
- Onderhoud binnen:Goed
- Onderhoud buiten:Goed
- Huidig gebruik:Woonruimte
- Huidige bestemming:Woonruimte
Ben je geinteresseerd in Leidsevaart 492RD, Haarlem? Neem Contact op!

